Thông tin
chung:
Tư vấn thiết
kế: Kts Unemori Architects
Địa điểm:
Meguro, Tokyo, Japan
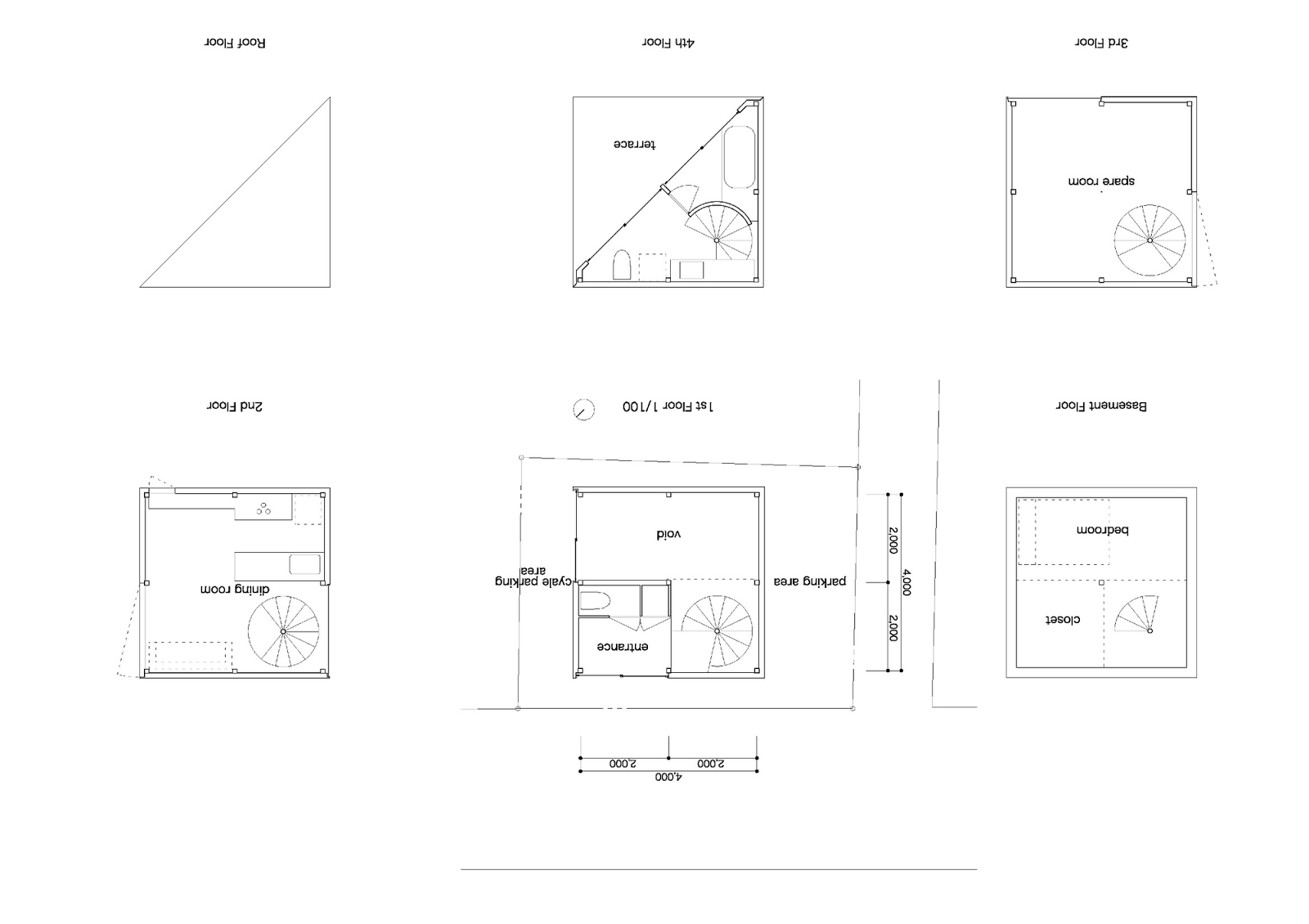
Diện tích xây
dựng: 16m2
Năm 2010
Photographs:
Ken Sasajima
Ngôi nhà nhỏ
này nằm xen kẽ trong khu vực có mật độ
xây dựng cao ở thành phố Tokyo, đây là tổ ấm của cặp vợ chồng trẻ và một đứa
con. Bên cạnh là những ngôi nhà sát nhau và thiếu không gian trống. Khu đất của
gia chủ rộng 34m2, nhưng kiến trúc sư chỉ thiết kế ngôi nhà trên diện tích
16m2, nhằm để lại khoảng không gian trống cần thiết nhằm lấy gió và ánh sáng.
Điều này làm cho ngôi nhà vượt trội hẳn so với khu vực xung quanh.
Không gian xuanh quanh ngôi nhà rất hữu dụng
vì chúng tạo điều kiện cho ánh sáng và gió vào trong phòng. Vị trí những cửa sổ
được nghiên cứu kỹ lưỡng để tạo được hiệu quả cao nhất. Đặc biệt, Một cánh cửa
lớn được bố trí ở tầng 2 và tầng 3, có thể đóng ra mở vào nhằm điều tiết ánh
sáng vào trong phòng. Khi cánh cửa đó mở ra, không gian trong phòng ngập tràn
ánh sáng và gió như ngoài trời.
Bên trong
ngôi nhà là các phòng chức năng: Gara, phòng ngủ, phòng bếp, phòng ăn soay
quanh một thang tròn, được phân chia hợp lý trên 4 tầng. Sàn nhà được thiết kế
tối giản và cố gắng mỏng nhất có thể(nhằm giảm chiều cao giữa các tầng), cùng với cửa
sổ lớn bên cạnh thang, điều này có tác dụng kết nối không gian giữa các tầng với
nhau. Từ cánh cửa này mở ra tầm nhìn rộng với khung cảnh xung quanh.
Kts Phạm Chinh biên tập từ Archdaily.com













